故障描述:
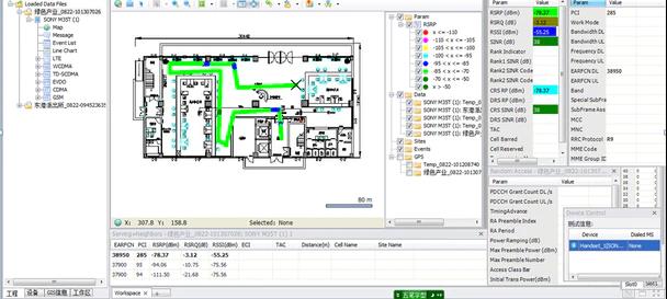
如下圖所示,綠色產業行政樓RSRP低于-100dBm,覆蓋信號弱。

故障診斷:
一、可能原因分析
•RRU、BBU原因導致;
•分布系統原因導致;
二、分析處理步驟
•LTE設備檢查無故障,合路器正常,檢查分布系統有駐波問題。
•如下圖所示,0.8米處駐波14.27。


解決措施:
•更換饋線后測試駐波正常;

